

Découvrez le charme de cette maison T3, offrant une vie en harmonie avec le soleil et la nature. Nichée dans un cadre paisible de bord de mer que procure la Vendée (85) avec une exposition Sud-Est, cette villa haut de gamme est une invitation à vivre dans le confort et la sérénité.
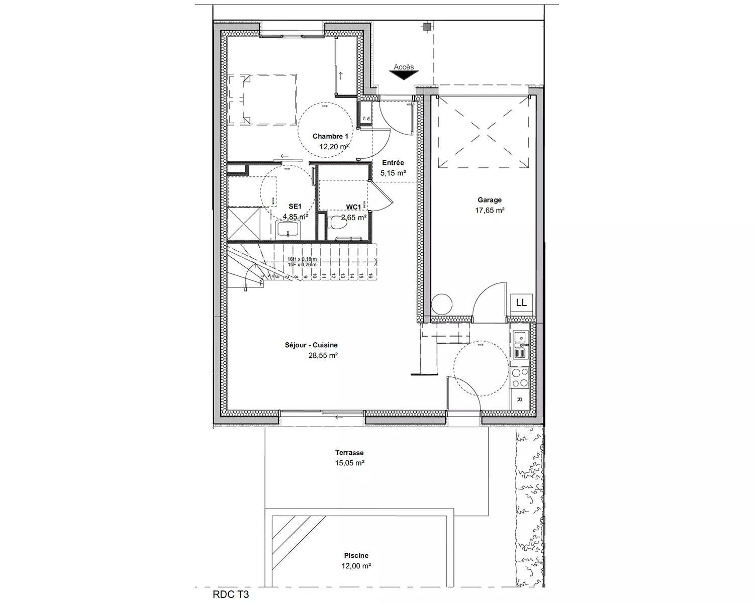
La disposition intelligente de cette maison crée un espace de vie fonctionnel et agréable. Le terrain de 199 m² offre un havre de paix, tandis que la terrasse de 15.05 m² devient le lieu parfait pour des moments de détente en plein air.
La sécurité de votre véhicule est assurée par le garage de 17.05 m², et la présence d'une piscine de 12 m² ajoute une touche de luxe à votre quotidien.
Cette maison représente bien plus qu'un simple lieu de résidence ; c'est une opportunité de créer des souvenirs durables. Ne manquez pas cette chance unique d'acquérir une propriété qui offre un équilibre parfait entre confort, praticité et élégance. Contactez-nous dès aujourd'hui pour organiser une visite et découvrir votre futur chez-vous.
Frais de notaire réduits
LIVRAISON 2024 / 2025
Remplissez le formulaire ci-dessous en quelques secondes